Expansive Brookside Living
Designed for families who refuse to compromise on space, security or serenity, this custom-built residence delivers a rare blend of bushland living, generous proportions and exceptional vehicle access all set on an expansive 986sqm corner block backing directly onto the banks of Jane Brook.From the moment the electric gate slides open, it's clear this is a home built for real life. There's room here for kids to run, pets to roam and toys to be stored, whether that's a boat, caravan, trailer or multiple vehicles. The fully enclosed front yard offers a safe, open lawn for children and animals or room for a pool! The corner block with side access unlocks endless parking options rarely found in this tightly held pocket.
What truly sets this home apart is what lies beyond the back fence. Step outside and the suburb melts away, replaced by towering River Gums, paperbarks and the gentle flow of Jane Brook. With no rear neighbours and uninterrupted natural outlooks, the setting feels worlds away from suburbia yet everyday conveniences remain close at hand.
Inside, the home is open, light-filled and cleverly zoned to suit busy family living. Raked ceilings, split levels and expansive windows create a sense of space while framing the leafy outlook from every living area. The sunken lounge, complete with gas fireplace, is perfect for cosy nights in, while the adjoining dining and family zones comfortably accommodate larger gatherings.
The country-style kitchen sits at the heart of the home, elevated to capture the view while allowing easy connection with both indoor and outdoor living spaces. Long benches, ample storage, quality appliances and a double fridge recess make it ideal for family meals, entertaining and weekend hosting. Outdoors, the shaded veranda and alfresco areas spill directly toward the brook, creating a peaceful retreat ideal for entertaining, unwinding or simply enjoying the changing seasons.
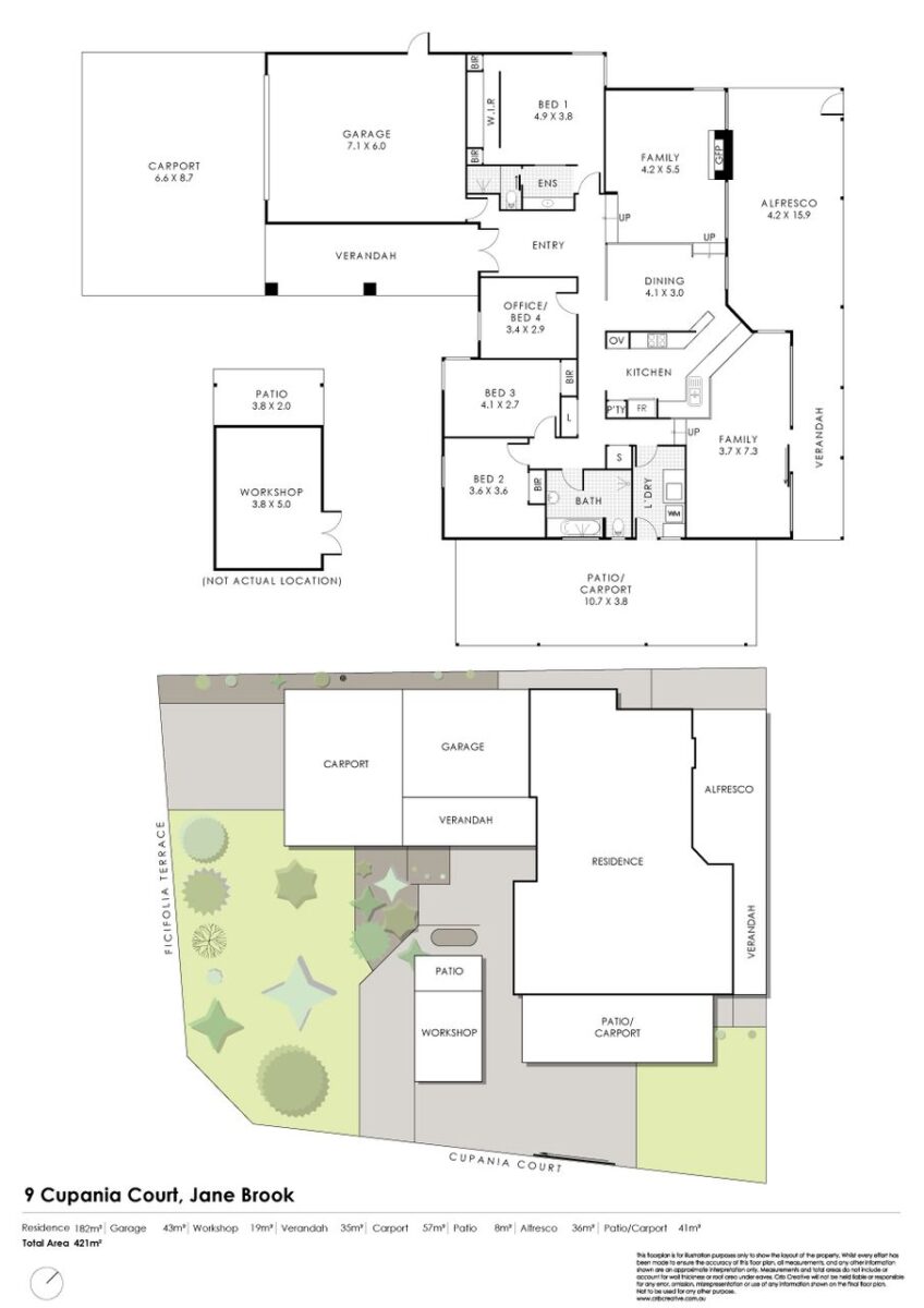
Accommodation is generous and well considered. The master suite is privately positioned and includes a walk-through robe and ensuite, while the remaining bedrooms all feature built-in storage and easy access to a full family bathroom. A separate home office or guest bedroom adds flexibility for growing families, remote work or visitors.
With its secure gated entry, extensive parking options, family-friendly layout and one of Jane Brook's most tightly held natural settings, this is a home that truly grows with you.
Features at a glace:
• 4 bedrooms 2 bathrooms
• Open country kitchen
• Spacious sunken lounge
• Featured raked ceilings
• Side access for parking many vehicles
• Electric gated entrance
• Powered shed
• Double garage with mezzanine
• Solar system
• Alarm
• Ducted reverse-cycle air-conditioning
• Ceiling fans through-out
• Massive 986m2 corner block
• Built 1980
Council Rates - Approx $2,600 p/a
Water Rates - Approx $1,239.79 p/a
Opportunities like this combining land size, privacy, parking and a true Brookside position are exceptionally rare.
Contact the listing agent Joel Mitton on 0415 636 585 to arrange a viewing today!
Disclaimer: This information is provided for general information purposes only and is based on information provided by the Seller and may be subject to change. No warranty or representation is made as to its accuracy and interested parties should place no reliance on it and should make their own independent enquiries.
"*" indicates required fields

































